Sketsa Rumah Tampak Depan Desain rumah 2 lantai tampak depan dan samping

If you are searching about 25 Gambar Sketsa Rumah Tampak Depan Dan Samping - Design Info On The Web you've visit to the right place. We have 35 Pictures about 25 Gambar Sketsa Rumah Tampak Depan Dan Samping - Design Info On The Web like Gambar Sketsa Rumah Sederhana Tampak Depan, 25 Gambar Sketsa Rumah Tampak Depan Dan Samping - Design Info On The Web and also Kumpulan Mewarnai Gambar Sketsa Rumah Sederhana Tampak Depan - Desain. Here you go:

25 Gambar Sketsa Rumah Tampak Depan Dan Samping - Design Info On The Web

25 Gambar Sketsa Rumah Tampak Depan Dan Samping - Design Info On The Web designinfoontheweb.blogspot.com

tampak samping depan sketsa idaman pedesaan

Desain Rumah Type 5460 Rumah Bali Modern - Rumah Minimalis

Desain Rumah Type 5460 Rumah Bali Modern - Rumah Minimalis www.sunma.xyz

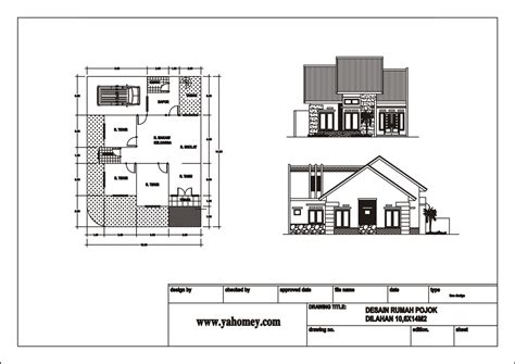
tampak depan samping sketsa kotak denah lantai kerja

30 Desain Rumah Bagian Depan Modern, Mewah Dan Minimalis - Desain.id

30 Desain Rumah Bagian Depan Modern, Mewah dan Minimalis - Desain.id www.desain.id

Gambar Sketsa Rumah Sederhana Tampak Depan

Gambar Sketsa Rumah Sederhana Tampak Depan www.gogle.my.id

Download Sketsa Gambar Rumah Tampak Depan - Sketsa Gambar

Download Sketsa Gambar Rumah Tampak Depan - Sketsa Gambar kumpulangambarsket.blogspot.com

sketsa zulfa tampak rahma

Desain Rumah 2 Lantai Tampak Depan Dan Samping - Sekitar Rumah

Desain Rumah 2 Lantai Tampak Depan Dan Samping - Sekitar Rumah sekitaranrumah.blogspot.com

denah lantai tampak minimalis samping sederhana rab potongan lengkap tinggal 6x12 contoh luas terupdate autocad dapurindonesia mewah

Sketsa Rumah 2 Lantai

Sketsa Rumah 2 Lantai arminiantoday.blogspot.com

tampak sketsa lantai impian bangunan menghitung membangun diposting agung widiatama cipta memberikan terakhir mencoba ingin

Sketsa Rumah 6 X 12

Sketsa Rumah 6 X 12 www.sempoadunia.com

denah sketsa jepang tidur ukuran konsep

Terpopuler 37+ Gambar Teras RumahModern

Terpopuler 37+ Gambar Teras RumahModern www.kanopitop.com

teras rumahmodern terpopuler

Rumah Minimalis Tampak Depan Dengan Batu Alam Baru - Desain Rumah Minimalis

Rumah Minimalis Tampak Depan Dengan Batu Alam baru - Desain Rumah Minimalis livedesain.com

minimalis tampak lantai sederhana contoh batu denah atap mewah teras samping leter jendela dekorrumah bungalow baru tapi storey moden tadacip

Gambar Sketsa Rumah Tampak Depan - AR Production

Gambar Sketsa Rumah Tampak Depan - AR Production arproductionsblog.blogspot.com

tampak lantai dua tropis samping sketsa bangun denah

Sketsa Rumah Tampak Depan Dan Samping - Info Terkait Rumah

Sketsa Rumah Tampak Depan Dan Samping - Info Terkait Rumah terkaitrumah.blogspot.com

lantai minimalis 6x12 denah sederhana bertingkat depan tampak 5x10 6x10 minimalis123 tiap kamar

Sketsa Pemandangan, Sketsa Bunga, Dan Sketsa Rumah [LENGKAP]

Sketsa Pemandangan, Sketsa Bunga, dan Sketsa Rumah [LENGKAP] luthfan.com

sederhana joglo kartun adat luthfan desain menggambar lumbung makmur arta properti lengkap melukis minimalis pensil battolsl

Jasa Hitung Rab Gambar Kerja Dan Hitung Struktur WhatsApp Only 0812

Jasa Hitung Rab Gambar Kerja dan Hitung Struktur WhatsApp Only 0812 jasahitungrab.blogspot.com

tampak arsitektur potongan skala denah dimensi pengertian manusia lengkap hubungan hitung ilmunesia fungsi menunjukkan rab 1795 wujud terlihat definisi luar

Sketsa Rumah Minimalis Tampak Depan - JOURNEYJUSTBEGIN

Sketsa Rumah Minimalis Tampak Depan - JOURNEYJUSTBEGIN journeyjustbegin.blogspot.com

minimalis tampak sketsa

Gambar Denah Rumah Tampak Depan Belakang Samping | Dekorhom

Gambar Denah Rumah Tampak Depan Belakang Samping | Dekorhom dekorhom.blogspot.com

tampak depan atap denah pelana gambar samping atas rencana konsep segitiga deagamdesign deagam arie bpk

25 Gambar Sketsa Rumah Tampak Depan Dan Samping - Design Info On The Web

25 Gambar Sketsa Rumah Tampak Depan Dan Samping - Design Info On The Web designinfoontheweb.blogspot.com

samping sketsa

14+ Contoh Sketsa Rumah Minimalis (Elegan Dan Eksotis)

14+ Contoh Sketsa Rumah Minimalis (Elegan dan Eksotis) hamparan.net

sketsa sederhana minimalis pensil lukisan lantai menggambar dimensi adat denah elegan eksotis hamparan atau penjelasanya kasar garis mewarnai hist pake

25 Gambar Sketsa Rumah Tampak Depan Dan Samping - Design Info On The Web

25 Gambar Sketsa Rumah Tampak Depan Dan Samping - Design Info On The Web designinfoontheweb.blogspot.com

tampak depan samping rumah sketsa

Beberapa Langkah Dalam Membangun Rumah Impian Anda - #1. Menghitung

Beberapa Langkah Dalam Membangun Rumah Impian Anda - #1. Menghitung architectaria.com

tampak rencana impian proyek membangun rab biaya perencanaan menghitung langkah pekerjaan konstruksi architectaria anggaran sendiri

Sketsa Rumah Tampak Depan - Ingat Sekolah

Sketsa Rumah Tampak Depan - Ingat Sekolah ingatsekolahs.blogspot.com

tampak samping minimalis sketsa denah baru hbs kanan

Sketsa Gambar Rumah Tampak Dari Depan | Idegambar.my.id

Sketsa Gambar Rumah Tampak Dari Depan | idegambar.my.id idegambar.my.id

Sketsa Rumah Tampak Depan Dan Samping - Info Terkait Rumah

Sketsa Rumah Tampak Depan Dan Samping - Info Terkait Rumah terkaitrumah.blogspot.com

tampak samping depan lantai pojok kavling blogargajogja sketsa lahan argajogja memanjang

Desain Dan Denah Rumah Type 36 Lengkap

Desain dan Denah Rumah Type 36 Lengkap www.iderumahidaman.com

denah tampak potongan garis kumpulan rab pengembangan seon titik lahan arsitek cakar jarak pondasi excel pilih disimpan

Berbagai Macam Model Depan Rumah Minimalis Yang Menarik

Berbagai Macam Model Depan Rumah Minimalis yang Menarik saibot-blog.blogspot.com

tampak sketsa menarik saibot

Kumpulan Mewarnai Gambar Sketsa Rumah Sederhana Tampak Depan - Desain

Kumpulan Mewarnai Gambar Sketsa Rumah Sederhana Tampak Depan - Desain decoromah.blogspot.com

tampak desain denah 6x8 lantai bangunan 6x12 ukurannya rumahpedia pagar samping atap lahan sempit idaman gabungan versi tukang spacestock kumpulan

Sketsa Denah Rumah Sederhana: Rumah Sederhana Tapi Elegan | Rumah

Sketsa Denah Rumah Sederhana: Rumah Sederhana tapi Elegan | Rumah mengaohexa.blogspot.com

sederhana denah tampak lantai minimalis tapi elegan fotorumahminimalis1

Sketsa Rumah Sederhana - Konsep Terbaru 53+ Sketsa Rumah Sederhana

Sketsa Rumah Sederhana - Konsep Terbaru 53+ Sketsa Rumah Sederhana gambarlulung.blogspot.com

sketsa konsep

47+ Gambar Denah Tampak Dan Potongan Rumah Sederhana Simple Dan Minimalis

47+ Gambar Denah Tampak Dan Potongan Rumah Sederhana Simple Dan Minimalis rangka.kanopitop.com

denah samping beserta potongan arsitektur arsitek terkenal deagam diketahui kontemporer exposedesainrumah

Gambar Sketsa Rumah Tampak Depan - AR Production

Gambar Sketsa Rumah Tampak Depan - AR Production arproductionsblog.blogspot.com

rumah denah tampak depan sketsa koleksi lantai potongan beserta kerja rumahpedia rab

ZULFA Zupha-zupha: SKETSA RUMAH ALA SAYA

ZULFA zupha-zupha: SKETSA RUMAH ALA SAYA zulfa-rahma.blogspot.com

sketsa rumah tampak samping zulfa

Sketsa Rumah Minimalis

Sketsa Rumah Minimalis desainrumahcantikmodern.blogspot.com

rumah sketsa depan tampak 6x9 populer lantai desainrumahcantikmodern teralis fotorumahminimalis1

Mewarnai Gambar Sketsa Rumah 5 - Karena Mereka Adalah Masa Depan...

Mewarnai Gambar Sketsa Rumah 5 - karena mereka adalah masa depan... dunia-parenting-anak.blogspot.com

mewarnai sketsa kartun marimewarnai mewarna warna istana limasan pemandangan karena mereka diwarnai membersihkan gadang lingkungan hbs cocok gedung sumber

14+ Contoh Sketsa Rumah Minimalis (Elegan Dan Eksotis)

14+ Contoh Sketsa Rumah Minimalis (Elegan dan Eksotis) hamparan.net

sketsa minimalis menggambar peralatan hamparan eksotis elegan denah arsiran pensil garis

LT-01 : Rumah Type 120 Minimalis 1 Lantai Bp. Ahmad - Sambi Kediri

LT-01 : Rumah Type 120 Minimalis 1 Lantai Bp. Ahmad - Sambi Kediri www.desainrumahkediri.com

tampak samping minimalis denah contoh lantai sketsa arsitektur sambi terlengkap sederhana kediri beserta bangunan bangun rencana lt01

Sketsa rumah tampak depan dan samping. Teras rumahmodern terpopuler. Denah lantai tampak minimalis samping sederhana rab potongan lengkap tinggal 6x12 contoh luas terupdate autocad dapurindonesia mewah

close