Tata Letak Pengertian perencanaan tata letak pabrik

If you are searching about Tata Letak Pabrik you've came to the right place. We have 35 Pictures about Tata Letak Pabrik like Mengenal metode tata letak gudang untuk bisnis anda, Tata Letak Pabrik dan Pemindahan Bahan (Edisi 3): Sritomo and also tata letak. Read more:

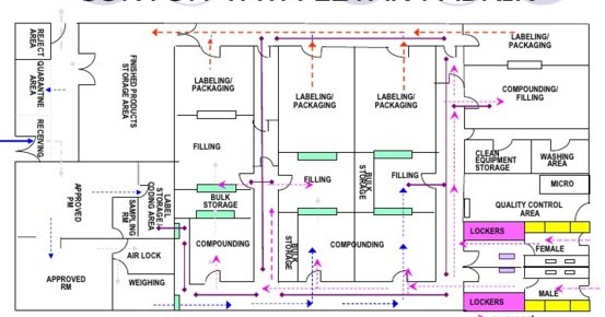
Tata Letak Pabrik

Tata Letak Pabrik www.scribd.com

pabrik letak

Pengertian Perencanaan Tata Letak Pabrik

Pengertian Perencanaan Tata Letak Pabrik www.temukanpengertian.com

pabrik letak

Mengenal Tata Letak Dengan Mengggunakan Rumus Fengshui - ARC BALI

Mengenal Tata Letak Dengan Mengggunakan Rumus Fengshui - ARC BALI arcbali.com

ute joost fengshui mengggunakan letak rumus guida denah planung gartenplanung tinggal terrasse maramani hausbau echelle bauplanung lesezeit chiave maßstäbe festlegen

Contoh Desain Tata Letak Sirkuit Terpadu - Menata Rapi

Contoh Desain Tata Letak Sirkuit Terpadu - Menata Rapi menatarapi.blogspot.com

letak tata sirkuit terpadu haki

The First Post: STRATEGI Dan TATA LETAK (Manajemen Operasi)

the first post: STRATEGI dan TATA LETAK (Manajemen Operasi) rizkyzulfia.blogspot.com

letak produksi fasilitas perusahaan strategi manajemen operasi perancangan

Tata Letak

Tata Letak www.slideshare.net

Tata Letak Dapur Menurut Feng Shui Agar Rezeki Lancar

Tata Letak Dapur Menurut Feng Shui Agar Rezeki Lancar hokifengshui.blogspot.com

tata menurut letak dapur lancar rezeki menanam

Jenis Jenis Layout Tata Letak

Jenis Jenis Layout Tata Letak kumpulanberbagaijenis.blogspot.com

letak

Tata Letak Pabrik Dan Pemindahan Bahan (Edisi 3): Sritomo

Tata Letak Pabrik dan Pemindahan Bahan (Edisi 3): Sritomo www.belbuk.com

letak tata pabrik pemindahan edisi buku belbuk

Cara Membuat Dan Contoh Mading Yang Menarik Untuk Dibaca - Mas Fikr

Cara Membuat dan Contoh Mading yang Menarik untuk Dibaca - Mas Fikr masfikr.com

mading contoh rubrik sketsa susunan letak judul pendidikan dibaca masfikr cepat dunia muhammadiyah

Tugas Dan Catatan Perkuliahan: Strategi Tata Letak

Tugas dan Catatan Perkuliahan: Strategi Tata Letak pikri-aliyudin1723.blogspot.com

letak strategi analisa hubungan perkuliahan catatan penyelesaian chart

Cara Menghilangkan Navbar Blog Terbaru - Teknomu

Cara Menghilangkan Navbar Blog Terbaru - Teknomu teknomu.com

navbar menghilangkan tata letak

Tata Letak

Tata Letak www.slideshare.net

letak tata

Kenali 5 Bentuk Tata Ruang Kantor, Dari Plus Minus Hingga Manfaatnya

Kenali 5 Bentuk Tata Ruang Kantor, dari Plus Minus hingga Manfaatnya www.rumah123.com

kantor letak ruang definisi

Sinonim Tata Letak, Antonim Tata Letak, Thesaurus Tesaurus

Sinonim tata letak, Antonim tata letak, Thesaurus Tesaurus www.sinonimkata.com

letak tata artikata

4 Cara Efektif Dalam Merencanakan Design Tata Letak Gudang - Media SCM

4 Cara Efektif Dalam Merencanakan Design Tata Letak Gudang - Media SCM www.mediascm.xyz

gudang letak merencanakan efektif

MEDIA AKTUALISASI DIRI: TINDAK PIDANA DESAIN TATA LETAK SIRKUIT TERPADU

MEDIA AKTUALISASI DIRI: TINDAK PIDANA DESAIN TATA LETAK SIRKUIT TERPADU rdyfhunlam.blogspot.com

nvidia 780i sirkuit letak tata terpadu komponen komputer computador pidana tindak aktualisasi masing penjelasan azq processadores

Manajemen Tata Letak Fasilitas Pabrik - Cognoscenti Consulting Group

Manajemen Tata Letak Fasilitas Pabrik - cognoscenti consulting group ccg.co.id

letak fasilitas manajemen

Contoh Sertifikat Desain Tata Letak Sirkuit Terpadu - Menata Rapi

Contoh Sertifikat Desain Tata Letak Sirkuit Terpadu - Menata Rapi menatarapi.blogspot.com

sirkuit terpadu letak desain izin mengurus dunianotaris sertifikat notaris

Jenis Jenis Layout Tata Letak

Jenis Jenis Layout Tata Letak kumpulanberbagaijenis.blogspot.com

letak tata

Cara Mengatur Tata Letak Pada Blog: Mengatur Tata Letak Pada Blog

cara mengatur tata letak pada blog: Mengatur tata letak pada blog berbagikreativitas3.blogspot.com

letak mengatur

Perencanaan Tata Letak Fasilitas Panji Kusuma Yudha | Apple Zone

Perencanaan Tata Letak Fasilitas Panji Kusuma Yudha | Apple Zone panjikusumayudha.blogspot.com

tata letak fasilitas produksi perencanaan pabrik manajemen industri

Inilah Keunikan Desain Rumah Adat Bali | Desainrumahsederhana.com

Inilah Keunikan Desain Rumah Adat Bali | desainrumahsederhana.com www.desainrumahsederhana.com

bali adat tata letak keunikan desainrumahsederhana arsitektur konsep

Tata Letak

tata letak www.scribd.com

letak tata

Tata Letak

Tata Letak www.slideshare.net

tata letak slideshare

Mengenal Metode Tata Letak Gudang Untuk Bisnis Anda

Mengenal metode tata letak gudang untuk bisnis anda mmproperty.com

gudang letak metode tentukan sesuai jenis strategy warehouses logistic racking konstruksi isanet administración

Slide PowerPoint Unsur Tata Letak (Dasar Desain Grafis) | Blog Edukasi

Slide PowerPoint Unsur Tata Letak (Dasar Desain Grafis) | Blog Edukasi harusserius.blogspot.com

letak tata unsur grafis kualitas ditentukan diseñador travaillant graphistes requiere habilidades dasar digitalis tahu konsumen keputusan produktifitas tingkatkan lavorano pelajaran

Mengatur Tata Letak Barang Di Gudang

Mengatur Tata Letak Barang di Gudang turboly.com

gudang letak barang mengatur

Prinsip Prinsip Tata Letak Mesin Pada Ruangan Produksi - Seputar Mesin

Prinsip Prinsip Tata Letak Mesin Pada Ruangan Produksi - Seputar Mesin seputaranmesin.blogspot.com

letak prinsip ruangan

(DOC) DESAIN TATA LETAK SIRKUIT TERPADU | Dedy Ardianto - Academia.edu

(DOC) DESAIN TATA LETAK SIRKUIT TERPADU | dedy ardianto - Academia.edu www.academia.edu

tata letak sirkuit terpadu

Contoh Gambar Desain Tata Letak Sirkuit Terpadu – Berbagai Contoh

Contoh Gambar Desain Tata Letak Sirkuit Terpadu – Berbagai Contoh berbagaicontoh.com

sirkuit terpadu letak jogloabang gbic tentang transceiver finisar hak

Ditt's Warehouse: Blog Tata Letak Segara Ega

Ditt's Warehouse: Blog Tata Letak Segara Ega dietawihartono.blogspot.com

ega letak segara dega iya

Cara Mengatur Tata Letak Template Responsive Bmag Sweettheme

Cara Mengatur Tata Letak Template Responsive Bmag Sweettheme www.buatkuingat.com

tata letak bmag mengatur bila sobat tampilan

Seputar Manajemen

Seputar Manajemen dmanagerial.blogspot.co.id

letak strategis keputusan kepentingan fariable manajemen fasilitas bangunan

SEO 2014 Responsive Blogger Template - Selo Aji

SEO 2014 Responsive Blogger Template - Selo Aji selo-aji.blogspot.com

letak

Letak fasilitas manajemen. Contoh gambar desain tata letak sirkuit terpadu – berbagai contoh. Letak tata artikata

close